[엔트로피타임즈 최기훈 기자] e편한세상의 2020년 브랜드 리뉴얼 첫 단지가 입주를 시작했다. 대림산업은 'e편한세상 옥정 메트로포레'의 입주가 진행중이라고 26일 밝혔다. e편한세상 옥정 메트로포레는 24개동, 총 2,038세대로 조성된 대규모 단지로, 양주신도시에 공급되는 네 번째 e편한세상 아파트다. 대림산업은 지난 6월 1일 ‘e편한세상’을 새롭게 단장해 선보였다. 이번 리뉴얼에서 e편한세상은 변화된 브랜드 아이덴티티와 디자인 요소를 공개 하였다. e편한세상 하면 떠오르는 대표 심볼인 구름과 오렌지 컬러는 e편한세상이 지난 20년 동안 쌓아온 대표 브랜드 아이덴티티이자 독보적인 마크이다. 2000년도 브랜드 론칭 이후 구름 심볼과 오렌지 컬러의 대표성을 가지고 소통한 e편한세상인만큼 이번 리뉴얼에서도 그 동안 소비자와 쌓아왔던 신뢰를 바탕으로 심볼만을 강조한 브랜드 이미지를 더욱 강력히 구축하였다. 또한 뉴 슬로건 ‘For Excellent Life’를 기반으로 전문적인 기술, 독창적인 디자인, 차별화된 서비스를 e편한세상의 핵심 브랜드 가치로 삼았다. 지금까지 줄곧 ‘좋은 집’의 기준을 만들어 온 e편한세상은 최고 수준의 첨단 기술과 전문성으로 완
[엔트로피타임즈 최기훈 기자] GS건설과 쌍용건설이 26일부터 주안3구역에서 2000가구가 넘는 신도시급 ‘주안파크자이 더 플래티넘’을 분양한다. 견본주택 방문을 원하는 고객은 사전 방문 예약을 해야한다. 주안파크자이 더 플래티넘 견본주택은 6월 26일(금)부터 7월 5일(일)까지 10일간 매일 70팀씩 사전 방문 예약자에 한해서만 방문이 가능하다. 정해진 시간에 예약자 본인 외 동반 1인까지만 방문이 가능하며 체온 검사 및 마스크를 착용해야 한다. 견본주택 오픈에 앞서 홈페이지에서 실시된 사전 방문 예약에서 1시간만에 총 700팀 방문 전 시간이 마감될 정도로 예비 청약자들의 뜨거운 열기를 보였다. 사전 방문예약을 하지 못한 수요자들은 홈페이지(http://japk-xi-theplatinum.com)를 통해서도 유니트 VR 등 자세한 단지 내용을 확인 할 수 있다. 이 단지는 주택 유무나 세대주, 세대원에 상관없이 청약통장 가입 후 1년이 지나고 예치금을 충족하면 1순위 청약이 가능하다. 또한 재당첨 제한이나 기존 당첨 여부에 관계 없으며 당첨자 발표 후 6개월 뒤부터 전매가 가능하다. 단, 중도금 대출 등 금융과 관련된 부분은 추후 확인이 필요하다. 주안
[엔트로피타임즈 최기훈 기자] 한화건설이 작년 8월 런칭한 프리미엄 주거 브랜드 포레나(FORENA)가약 1년만에 다양한 기록을 세워 눈길을 끌고 있다. 한화건설은 기존 아파트 브랜드 '꿈에그린'과 별도로 프리미엄 브랜드 '포레나'를 지난해 8월 시장에 내놨는데 1년만에 주택시장에 안착했다는 평가다. ■ 6개 분양단지 연속 매진, 포레나 단지 미분양 제로 한화건설은 지난해 포레나 브랜드를 런칭한 이후 6개 포레나 단지를 분양했는데, 모든 단지를 완판시키며 화제를 모았다. 또한 포레나 브랜드로 분양되거나 브랜드를 변경한 단지(공사 중 단지, 입주단지 포함)를 통틀어 미분양 제로를 달성했다고 밝혔다. 포레나 전주 에코시티, 포레나 루원시티, 포레나 부산 덕천 등 신규분양 아파트들은 기록적인 청약 경쟁률을 보이며 각 지역의 최선호 단지로 떠올랐다. 포레나 전주 에코시티는 지역 역대 최고 청약경쟁률을 기록했으며 포레나 부산 덕천의 경우 2년만에 부산 내 최고 청약경쟁률을 다시 쓰기도 했다. ■ 브랜드 바꾸고 바로 완판, 미분양 관리지역에서도 완판 한화 포레나의 브랜드 파워는 부동산 시장 장기 침체로 유명했던 거제시에서도 입증됐다. 한화건설이 2018년 10월 처음
[엔트로피타임즈 최기훈 기자] 대우건설(대표이사 김형)이 아현/북아현 뉴타운 개발로 고품격 주거타운이 형성된 마포에서 ‘아현 푸르지오 클라시티’를 26일 부터 분양한다. ‘아현 푸르지오 클라시티’는 도시형생활주택으로 공급되면서 각종 규제에서 자유롭다는 강점도 가지고 있다. 도시형생활주택은 전국에 거주하는 만 19세 이상이라면 청약통장 유무 및 주택소유 여부와 무관하게 누구나 청약할 수 있으며, 군별 중복청약 및 재당첨 제한도 적용되지 않는다. 분양가는 4억9,400만원에서 8억8,900만원으로 예정되었으며, 청약은 2020년 7월 2일 ~ 3일 청약홈을 통해 진행된다. 군별 1인 1건, 청약신청금 100만원으로 신청이 가능하다. 당첨자발표는 7월 8일 예정이며, 계약일은 7월 9일 ~ 10일까지 예정이다. 입주는 2023년 10월 예정이다. ‘아현 푸르지오 클라시티’는 사이버견본주택과 오프라인 견본주택을 동시에 개관하며, 오프라인 견본주택의 경우 사회적거리두기에 맞추어 마스크를 착용하고 체온이 37.5도인 경우에만 내방객 사이에 간격을 둔 상태로 관람이 가능하다. ‘아현 푸르지오 클라시티’는 서울시 마포구 아현동 275-2번지 일대에 들어서는 지하 6층~ 지
[엔트로피타임즈 최기훈 기자] 대우건설과 한화건설은 경기 광명시 광명뉴타운 14구역 ‘광명 푸르지오 포레나’ 사이버 견본주택을 26일 오픈한다. 이 단지는 지하 3층, 지상 최고 27층, 14개동, 전용면적 32~84㎡, 총 1,187가구 규모로 조성된다. 이 중 397가구가 일반에 분양된다. 분양 가구를 전용면적별로 살펴보면 △49㎡ 4가구 △59㎡ 58가구 △74㎡ 63가구 △84㎡ 272가구로 구성됐다. 입주는 2023년 9월 예정이다. 대우건설은 이 단지의 분양가를 3.3㎡당 평균 1,925만원으로 책정했다. 대우건설 관계자는 "인근 아파트의 시세보다 저렴하게 책정돼 실수요자들의 관심이 뜨럽다"고 말했다. 대금납입은 계약금 10%, 중도금 60%, 잔금 30%로 진행되며, 중도금 대출의 경우 기존주택에 대한 주택담보대출이 없을 시 투기과열지구 주택담보대출비율(LTV)인 최대 40%까지 가능하며 이자후불제를 적용한다. 청약접수는 오는 6월 29일(월) 특별공급을 시작으로 6월 30일(화) 1순위 당해지역, 7월 1일(수) 1순위 기타지역 청약을 받는다. 당첨자 발표는 7월 8일(수)이며, 정당 계약은 7월 20일(월)부터 22일(수)까지 3일간 진행된다
[엔트로피타임즈 최기훈 기자] 현대건설이 미국 NASA에서 개발하여 민간에 기술 이전된 광플라즈마 기술을 활용한 살균 기능으로 실내 부유 바이러스 및 유해물질을 제거할 수 있는 ‘광플라즈마 살균·청정 환기시스템(알파웨이브)’의 특허 등록을 완료하고 이를 소개하는 영상을 유튜브에 공개했다. 현대건설이 공개한 영상에 따르면 광플라즈마 살균·청정 환기시스템은 기존의 환기시스템이나 공기청정기의 경우 필터를 통해 특정 크기 이상의 입자나 이물질을 걸러내는 것과는 달리, 초미세먼지뿐 아니라 헤파필터로도 제거할 수 없는 바이러스·박테리아·곰팡이·휘발성유기화합물(VOCs)·폼알데하이드 등을 동시에 제거할 수 있다는 점에서 기존 제품들과 차별화된다. 이것은 현대건설이 지난해 선보인 강력한 공기청정 토탈솔루션 ‘H 클린알파 2.0’의 핵심기술이기도 하다. 광플라즈마 기술은 미국 항공우주국인 NASA에서 최초 개발한 것으로 밀폐된 우주선 내부 공기청정 및 우주인들이 먹는 식품을 살균하기 위해 개발된 기술이다. 광플라즈마는 짧고 강력한 진공자외선(UVU) 파장부터 일반자외선(VUGI) 파장영역과 가시광선(VR) 파장까지 동시에 일으켜 산소 분자와 물 분자를 깨뜨림으로써 수산화이온
[엔트로피타임즈 최기훈 기자] 대림산업과 SK건설은 세계에서 가장 긴 현수교로 건설 중인 터키 차나칼레대교 주탑 시공을 성공적으로 마쳤다고 밝혔다. SK건설과 대림산업은 14일 주탑 꼭대기에 현수교의 케이블을 지지하는 장비 설치 작업에 돌입하였다. 지난해 5월 주탑 기초 설치 후 약 1년 만이다. 현수교는 주탑과 주탑을 케이블로 연결하고 케이블에서 수직으로 늘어뜨린 강선에 상판을 매다는 방식의 교량으로, 현존하는 교량 중 가장 긴 경간장을 확보할 수 있기 때문에 해상 특수교량 분야 가운데 시공 및 설계 기술 난도가 가장 높은 분야이다. 차나칼레대교는 왕복4차로, 총 길이 3,600m, 주탑과 주탑 사이의 거리인 주경간장이 2,023m에 이른다. 현수교는 주경간장이 길어질수록 주탑의 높이도 높아진다. 차나칼레대교의 주탑은 높이 334m 철골 구조물이다. 현재 세계 최고 높이의 철골 주탑으로 프랑스의 에펠타워(320m), 일본의 도쿄타워(333m) 보다 높다. 차나칼레대교 주탑은 속이 빈 사각형 상자 모양의 블록을 마치 레고블록을 쌓아 올리듯이 설치되었다. 블록은 국내에서 생산된 강철판으로 현장에서 제작했다. 블록의 무게는 195톤부터 850톤까지 다양하다. 위
[엔트로피타임즈 최기훈 기자] 현대건설이 12일 인천 송도국제도시 ‘힐스테이트 레이크 송도 3차’ 아파트 사이버 모델하우스를 열고 본격적인 분양에 나섰다. 사이버 모델하우스 소개영상은 물론 튜토리얼영상도 제공해 모델하우스를 방문하지 않고도 유니트 곳곳을 확인할 수 있도록 했다. 인천시 연수구 송도동 397-5번지 일대에 들어서는 ‘힐스테이트 레이크 송도 3차’는 지하 2층~지상 최고 49층 8개동, 전용면적 84~155㎡, 총 1,100세대로 조성된다. 최근 수요의 니즈에 맞춘 중·대형으로 구성됐다. 입주는 2023년 10월 예정이다.■ 8월 전매제한 규제 강화 전 분양 정부가 지난 5월 11일(월) 부동산 대책으로 오는 8월부터 수도권 과밀억제권역 및 성장관리권역, 지방광역시 도시지역의 민간택지에서 건설·공급되는 주택의 전매제한 기간을 소유권 이전 등기 시(입주 시기)까지로 강화할 것을 예고했다. 국토부는 전매행위 제한기간을 강화하기 위해 8월까지 ‘주택법’ 시행령 개정을 완료할 계획이다. 힐스테이트 레이크 송도 3차는 전매제한 기간 강화 전 송도국제도시에서 분양하는 단지다. 단지가 들어서는 인천 송도국제도시는 비규제지역으로 청약자격이 다음과 같다. 세대주
[엔트로피타임즈 최기훈 기자] 대우건설이 6월 대치동 구마을 1지구를 재건축한 ‘대치 푸르지오 써밋’을 분양할 계획이다. 대치 푸르지오 써밋은 서울시 강남구 대치동 963번지 일원에 들어서며, 지하 2층~지상18층, 9개동, 총 489가구로 조성된다. 단지는 재건축이 예고된 구마을 1~3지구 중 가장 큰 규모로 조성되며, 전용면적별로 ▲51㎡A 33가구 ▲53㎡A 10가구 ▲59㎡A 20가구 ▲59㎡B 3가구 ▲102㎡A 30가구 ▲117㎡A 5가구 가 공급되며 또한 펜트하우스 타입인 ▲101㎡A ▲107㎡A ▲129㎡A ▲150㎡A ▲155㎡A 타입이 각 1가구씩 총 106가구가 일반분양 된다. 단지가 들어서는 대치동 일대는 우수한 인프라와 교육환경, 높은 미래가치를 갖추고 있어 서울 강남에서도 최고의 주거입지로 손꼽힌다. 가장 눈길을 끄는 것은 국내 최고 수준의 교육환경이다. 대치 푸르지오 써밋은 대현초와 대명중, 휘문중·고 등이 인접한 학세권 입지에 들어서며, 일대에 경기고, 단대부고, 중대부고, 진선여중·고 등이 형성돼 있다. 또한, 입시 1번가로 평가받는 대치동 학원가가 가까이에 조성돼 있어 수요자들의 관심이 집중될 것으로 기대된다. 또한, 대치 푸
[엔트로피타임즈 최기훈 기자] 대우건설이 12일 새로운 광고캠페인을 론칭하며 TV광고 영상을 공개했다. · 대우건설은 이번 광고를 통해 푸르지오의 새로운 브랜드 철학인 ‘Natural Noblity, 본연이 지니는 고귀함’에 바탕을 둔 단지 내 다양한 공간과 서비스를 소개함으로써, 고객들에게 푸르지오만의 차별화된 고급스러움을 전달할 계획이다. 이번 광고는 디자인과 공기를 소재로 두 편이 제작되었다. ‘디자인’편은 실제 새로운 디자인이 적용된 ‘푸르지오’의 다양한 실내외 공간을 보여주고, ‘깨끗한 공기’편은 대표적인 주거상품으로 공기질 관리시스템인 ‘푸르지오 클린에어시스템’을 소개하고 있다. 이를 통해 푸르지오에서 누릴 수 있는 프리미엄 라이프에 대한 기대감을 느낄 수 있도록 했다. 최근의 아파트 브랜드 광고들이 화려한 이미지와 유명한 모델을 통해 브랜드 이미지를 고급화하려는 노력을 기울이고 있는 반면, 이번 푸르지오 광고캠페인은 정체불명의 이미지나 모델을 최대한 배제하고 새로워진 디자인과 상품을 전면에 부각시켰다. 광고 속 장소들은 대부분 별도 제작된 세트장이나 전혀 동떨어진 고급스런 공간이 아닌 최근 준공된 ‘과천푸르지오써밋’, ‘인덕원 푸르지오 엘센트로’
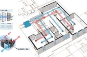
[엔트로피타임즈 최기훈 기자] 최근 코로나19 바이러스 재확산으로 보건 안전에 대한 경각심이 최고조에 이르고 있는 가운데 건설업계도 입주민들의 안전을 지킬 수 있는 기술 개발에 박차를 가하고 있다. 대림산업은 깨끗하고 안전한 주거환경에 대한 고객의 니즈를 사전에 파악하여 선제적으로 환기시스템 5개년 중장기 로드맵을 계획했고, 안티 바이러스 환기시스템 개발로 결실을 맺었다고 10일 밝혔다. 대림산업은 업계 최초로 안티 바이러스 환기시스템을 개발해 특허를 출원했다. 대림이 개발한 이 시스템은 공기청정형 환기시스템에 자외선 발광다이오드(UV LED) 광촉매 모듈을 탑재해 바이러스를 제거하게 된다. UV LED는 인체와 환경에 미치는 부작용은 적은 대신 살균 효과는 우수하다. 실제로 대림의 안티 바이러스 환기시스템은 한국산업기술시험원(KTL)의 시험결과 부유바이러스 저감률 99.9%, 부유세균 저감률 99.5%, 오존 발생농도 0.009ppm 등의 성능을 확보한 것으로 평가 받았다. 안티 바이러스 환기시스템은 환기부터 초미세먼지와 바이러스 제거까지 한번에 해결할 수 있다. 대림은 지난 2016년 예일대학교 교수의 검증을 거쳐서 업계 최초로 초미세먼지를 제거할 수 있
[엔트로피타임즈 최기훈 기자] GS건설 컨소시움(GS건설, 쌍용건설)은 6월 중 인천광역시 미추홀구 주안동 830번지 일원(주안3구역)에서 ‘주안파크자이 더 플래티넘’ 을 공급한다고 밝혔다. 주안파크자이 더 플래티넘은 지하 2층~지상 29층, 전용면적 36~84㎡, 총 2054가구 규모로 들어서며 이 가운데 1327가구가 일반 분양될 예정이다. 세부 면적별 공급물량은 △전용 36㎡ 50가구 △전용 44㎡ 149가구 △전용 59㎡ 586가구 △전용 73㎡ 359가구 △전용 84㎡ 183가구다. 수요자들의 선호도 높은 중소형 면적으로 구성된다. 미추홀구 주안동 일대는 정비사업이 활발하게 진행되고 있는 원도심 지역이다. 향후 편리한 생활 인프라와 어우러진 새 아파트 주거타운으로 거듭나는 만큼 많은 예비청약자들의 관심을 끌고 있다. 주안파크자이 더 플래티넘은 2000가구가 넘는 대단지 규모로 공급되는 데다 각종 브랜드 파워 1위에 빛나는 GS건설 ‘자이’ 브랜드의 노하우와 쌍용건설의 기술력이 더해져 짓는 컨소시엄 아파트다. 이 단지는 주안동 일대 원도심에 들어서 입주와 함께 바로 다양한 생활 인프라를 누릴 수 있는 것이 특징이다. 특히 개발이 활발한 용현, 학익지구
[엔트로피타임즈 최기훈 기자] 현대건설이 미세먼지 및 각종 외부의 유해한 환경으로부터 차단되어 케일, 로메인, 버터헤드 상추를 포함한 각종 상추 등의 엽채류 재배가 단지 내에서 가능한 ‘H 클린팜’을 소비자들에게 선보인다. ‘H 클린팜’은 강화유리와 LED 조명이 설치되어 외부와 완벽히 차단된 재배실과 어린이 현장학습 및 교육이 가능한 체험교육실, 내부 온도 및 습도 조절을 도와주는 항온항습실, 수확 이후 바로 먹을 수 있도록 도와주는 준비실 등이 함께 구성된 스마트팜 시스템이다. 지난 2월 선보인 초미세먼지 토탈 솔루션 ‘H 클린알파(Cleanα) 2.0’에 이어 입주민들의 건강과 그 이상의 가치를 고객에게 제공하겠다는 강력한 의지를 담고 있는 현대건설만의 시스템이다. ■ 3S(Space + Service + Smart tech)시스템으로 입주민들에게 최고의 가치를 제공할 ‘H 클린팜’ 현대건설이 공개한 영상에 따르면(https://youtu.be/euo9QtPUnzU) ‘H 클린팜’은 빛, 온도, 습도 등 식물 생육에 필요한 환경요소를 인공적으로 제어하는 밀폐형 재배시스템을 통해 농작물을 재배해 미세먼지 등 오염물질 없는 작물재배가 가능한 시설이다. 여기
[엔트로피타임즈 최기훈 기자] GS건설에서 운영하는 공식 브랜드 채널 유튜브의 ‘자이TV’가 건설업계 최초 실버버튼의 주인공이 됐다. 국내 건설사 중 가장 높은 선호도를 가진 브랜드로 자리매김한 자이(Xi)는 고객 소통에서도 가장 앞선 브랜드로 공인받았다. GS건설은 8일 지난달 자이TV가 유튜브로부터 구독자 10만이 넘는 채널로 공식 인증받아 실버버튼을 받았다고 밝혔다. 실버버튼은 구독자 10만명이 넘는 채널을 대상으로 유튜브 미국 본사에서 공식적으로 인증하는 기념 증서다. 자이TV 는 지난달 10만 구독자를 돌파한 데 이어 현재 11만명을 넘어서 건설사 최고의 고객 소통 채널로 자리를 확고히 했다. 특히, 실버버튼을 받은 것은 국내 아파트 브랜드 유튜브 채널 중 유일한 사례이자 기업 유튜브 채널로도 보기 드문 사례다. 자이TV는 누적 조회수도 약 1000만회를 기록할 정도로 인기를 끌고 있으며, 타 건설사들과 차별화되는 다양한 요소들을 갖춰 건설사 마케팅의 롤모델로 떠올랐다. 이번 자이TV의 실버버튼 수상이 주목 받는 것은 유통이나 게임업계 등과 달리 보수적이라고 생각하던 건설업계의 첫 사례기 때문. 아파트와 같은 부동산 상품은 일반 소비품보다 비교적 고
[엔트로피타임즈 최기훈 기자] 주춤하는 가 했던 분양열풍이 코로나19 국면에서도 좀처럼 사그라들지 않고 있다. GS건설이 대구 달서구에 분양하고 있는 '대구용산자이'가 최고 238.2대 1의 청약 경쟁률을 보이며, 전 주택형 1순위 마감했다. 3일 한국감정원 청약홈에 따르면 대구용산자이는 1순위 청약을 받은 결과, 270가구(특별공급 제외) 모집에 3만947명이 접수해 평균 114.6대 1의 경쟁률을 기록했다. 주택형 별로는 전용면적 84㎡A가 66가구에 1만5722명이 몰려 238.2대 1의 경쟁률로 가장 인기가 높았다. 이어 전용면적 100㎡ 96.5대 1, 84㎡C 66.6대 1, 84㎡B 60.9대 1 등 고른 경쟁률로 전 가구 1순위 청약에서 끝났다. 대구용산자이 분양 관계자는 “1순위 청약에 앞서 전날 진행된 특별공급에서 평균 6.5대 1의 경쟁률을 기록해 어느 정도 인기를 예감케 했다” 며 “신종 코로나바이러스(코로나19) 감염증으로 대면접촉이 충분치 못했음에도 많은 관심을 보여주신 고객께 감사 드리며 대구용산자이를 달서구를 대표하는 ‘랜드마크’ 아파트로 보답하겠다”고 말했다 당첨자 발표는 10일이며 정당 계약은 23~26일 4일간 진행된다. 전